Skip to content
Joe
Architect
Projects
About
Services
Contact
Projects
About
Services
Contact
Facebook
Linkedin
Instagram
Pinterest
Projects
About
Services
Contact
Projects
About
Services
Contact
View Full Project Gallery
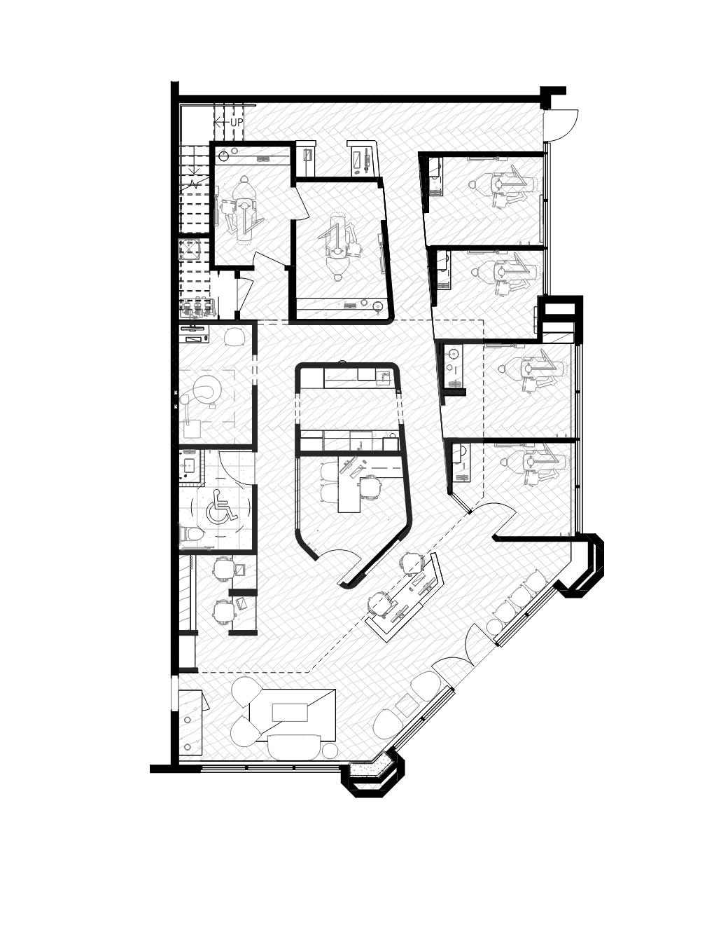
Beehive Dental
Industry
Dental
Client
Mohamed Aly, DDS
Area
3,069 SF
6 chairs
Completed
2024
Team
Henry Schein
Dental IT Corporation
Daniel Molina Studio
More Dental Projects
The Dentist Group
San Francisco,
California
Simply Orthodontics
Irvine,
California
Renton Orthodontics
Renton,
Washington
Tiny Tooth Co
Costa Mesa,
California
Greater Houston Orthodontics
Houston,
Texas
Local Smile Co.
Redondo Beach,
California
Simply Orthodontics
Irvine,
California
Greater Houston Orthodontics
Houston,
Texas
Picasso Orthodontics
Burlington,
Ontario
5280 Orthodontics
Denver,
Colorado
The Dentist Group
San Francisco,
California
Sas Endodontics
Hallendale Beach,
Florida